谈球吧

首页  >  产品天下  >  变压器  >  油式变压器
谈球吧(中国)-官方网站
  • 谈球吧(中国)-官方网站
  • 谈球吧(中国)-官方网站

10kV配电变压器

概述

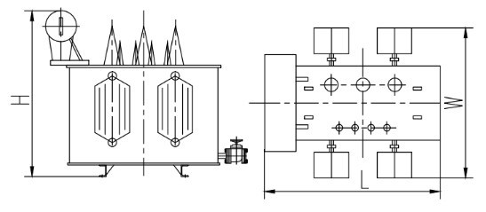
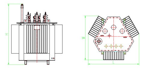
油浸式电力变压器是接纳绝缘油为绝缘介质,由铁芯、线圈、调压开关、油箱等组成的改变电压而传输交流电能的电器。具有体积小、价钱自制、耐候性强等特点。适用于电力系统、工矿企业、交通、邮电部分、科研单位等。本公司产品系列富厚,分为叠铁芯系列、卷铁芯系列、非晶合金系列等110kV以下的产品。结构形式灵巧多样、形状雅观、可知足差别用户的需求。


产品先容


产品特点:


铁芯

所有接纳优质晶粒取向冷轧硅钢片,全斜无孔绑扎结构,铁芯为多级蹊径形,三接缝或五接缝,空损低、噪音;卷铁芯用专用装备直接卷绕而成,无接缝、无角重,镌汰了磁阻,空损低;非晶合金变压器铁芯是一种更优质的铁芯质料,与古板硅钢片相比,平均降低空损72% ,空载电流50% 。


线圈

接纳优质QQ缩醛漆包圆铜线,无氧铜杆拉制的扁铜钱绕制而成,其形式有圆筒式、一连式、新型螺旋式、破碎式等,具有足够的电气强度、机械强度和散热能力。为了增添变压器的抗短路能力,可接纳更优质的自粘换位导线。其接纳自粘缩醛漆包扁线,绕成线圈后,经加热漆包扁线之间相互粘合,形成具有刚性的线圈,能遭受更大的弯曲应力,从而增强了变压器的抗短路能力。自粘换位导线的最大特点是能降低变压器的消耗,由于多股支解的导体加上换位,大大的降低了涡流消耗和环流消耗,能降低绕组热门的温升,使整个绕组温度漫衍更为匀称。


油箱

接纳优质钢板焊接而成,有椭圆型、矩型等结构,散热元件接纳片式散热器、膨胀散热器或波纹油箱,油箱在厂内举行可靠的密封试验,内外外貌经酸洗、磷化处置惩罚后,举行三底一面油漆喷涂,既抗侵蚀又雅观大方。


产品正常使用条件

周围空气温度:

最高气温:+40℃;

最低气温:-45℃;

最热月平均气温:+30℃;

最热年平均气温:+20℃;

海拔高度:≤1000m;

腌臜品级:Ⅲ级;

地动烈度:中国12级标准8级;

电源电压波形:近似正弦波;

注:若是凌驾以上使用条件,请在订货时说明,以便特殊思量。


产品参数

1、S11系列10kV 三相油浸式自冷双绕组无励磁调压配电变压器



型号 额定容量(kVA)  典范电压组合(kV) 联络组标号 阻抗电压(%) 总重(t) 参考尺寸(mm) 空载消耗 负载消耗
L*W*H (W) (W)
S11-30/10 30 高压H.V. 
6,6.3,10,10.5 
±2×2.5% 
±5% 
低压L.V. 
0.4 
Dyn11
Yyn0
4 0.35 720*480*850 100 630/600
S11-50/10 50


0.4 750*500*900 130 910/870
S11-63/10 63


0.5 800*600*950 150 1090/1040
S11-80/10 80


0.55 1000*720*980 180 1310/1250
S11-100/10 100


0.6 1050*750*1000 200 1580/1500
S11-125/10 125


0.7 1100*760*1050 240 1890/1800
S11-160/10 160


0.75 1120*770*1070 280 2310/2200
S11-200/10 200


0.8 1150*800*1100 340 2730/2600
S11-250/10 250


1 1300*950*1100 400 3200/3050
S11-315/10 315


1.2 1400*1000*1100 480 3830/3650
S11-400/10 400


1.4 1400*1000*1200 570 4520/4300
S11-500/10 500


2 1700*1200*1400 680 5410/5150
S11-630/10 630

4.5 2.5 1800*1300*1500 810 6200
S11-800/10 800


2.8 2150*1950*2000 980 7500
S11-1000/10 1000


3.2 2200*2000*2050 1150 10300
S11-1250/10 1250


3.7 2300*2100*2100 1360 12000
S11-1600/10 1600


4.5 2400*2200*2200 1640 14500
S11-2000/10 2000

5 5.5 2500*2400*2300 1940 18300
S11-2500/10 2500


6.4 2700*2600*2500 2290 21200



2、S13系列10kV 三相油浸式自冷双绕组无励磁调压配电变压器



型号 额定容量 典范电压组合(kV) 联络组标号 阻抗电压(%) 总重(t) 参考尺寸(mm) L*W*H 空载消耗 负载消耗
(kVA) (W) (W)
S13-30/10 30 高压H.V. 
6,6.3,10,10.5 
±2×2.5% 
±5% 
低压L.V. 
0.4
Dyn11
Yyn0
4 0.35 720*480*850 80 630/600
S13-50/10 50


0.4 750*500*900 100 910/870
S13-63/10 63


0.5 800*600*950 110 1090/1040
S13-80/10 80


0.55 1000*720*980 130 1310/1250
S13-100/10 100


0.6 1050*750*1000 150 1580/1500
S13-125/10 125


0.7 1100*760*1050 170 1890/1800
S13-160/10 160


0.75 1120*770*1070 200 2310/2200
S13-200/10 200


0.8 1150*800*1100 240 2730/2600
S13-250/10 250


1 1300*950*1100 290 3200/3050
S13-315/10 315


1.2 1400*1000*1100 340 3830/3650
S13-400/10 400


1.4 1400*1000*1200 410 4520/4300
S13-500/10 500


2 1700*1200*1400 480 5410/5150
S13-630/10 630

4.5 2.5 1800*1300*1500 570 6200
S13-800/10 800


2.8 2150*1950*2000 700 7500
S13-1000/10 1000


3.2 2200*2000*2050 830 10300
S13-1250/10 1250


3.7 2300*2100*2100 970 12000
S13-1600/10 1600


4.5 2400*2200*2200 1170 14500
S13-2000/10 2000

5 5.5 2500*2400*2300 1390 18300
S13-2500/10 2500


6.4 2700*2600*2500 1650 21200


3.S13-M.RL系列10kV 三相油浸式卷铁心自冷双绕组无励磁调压配电变压器

型号 额定容量(kVA) 典范电压组合(kV) 联络组标号 阻抗电压(%) 总重
       (t)
参考尺寸(m)
       L*W*H
空载消耗(W) 负载消耗(W)
S13-M.RL-30/10 30 高压H.V.
       6,6.3,10,10.5
       ±2×2.5%
       ±5%
       低压L.V.
       0.4
Dyn11
       Yyn0
4 0.35 0.8*0.7*0.8 80 630/600
S13-M.RL -50/10 50 0.45 1*0.85*0.95 100 910/870
S13-M.RL -63/10 63 0.5 1.1*0.8*1.2 110 1090/1040
S13-M.RL -80/10 80 0.58 1.1*0.8*1.35 130 1310/1250
S13-M.RL -100/10 100 0.65 1.1*0.8*1.35 150 1580/1500
S13-M.RL -125/10 125 0.7 1.1*0.85*1.4 170 1890/1800
S13-M.RL -160/10 160 0.8 1.1*0.95*1.42 200 2310/2200
S13-M.RL -200/10 200 0.95 1.15*1*1.5 240 2730/2600
S13-M.RL -250/10 250 1.1 1.2*1.1*1.5 290 3200/3050
S13-M.RL -315/10 315 1.3 1.3*1.12*1.5 340 3830/3650
S13-M.RL -400/10 400 1.45      1.35*1.2*1.55 410 4520/4300
S13-M.RL -500/10 500 1.9 1.5*1.3*1.6 480 5410/5150
S13-M.RL -630/10 630 4.5 2.1 1.5*1.3*1.7 570 6200
S13-M.RL -800/10 800 2.5 1.55*1.35*1.75 700 7500
S13-M.RL -1000/10 1000 3 1.75*1.5*1.75 830 10300
S13-M.RL -1250/10 1250 3.5 1.8*1.5*1.9 970 12000
S13-M.RL -1600/10 1600 4.5 1.9*1.7*2 1170 14500


4.SH15系列10kV 三相油浸式自冷双绕组无励磁调压非晶合金配电变压器

型号 额定容量(kVA) 典范电压组合(kV) 联络组标号 阻抗电压(%) 总重
       (t)
参考尺寸(mm)
       L*W*H
空载消耗(W) 负载消耗(W)
SH15-30/10 30 高压H.V.
       6,6.3,10,10.5
       ±2×2.5%
       ±5%
       低压L.V.
       0.4
Dyn11
       Yyn0
4 0.4 1000*550*700 33 630/600
SH15-50/10 50 0.6 1100*600*700 43 910/870
SH15-63/10 63 0.65 1100*650*900 50 1090/1040
SH15-80/10 80 0.7 1150*650*900 60 1310/1250
SH15-100/10 100 0.65 1200*700*900 75 1580/1500
SH15-125/10 125 0.83 1250*950*900 85 1890/1800
SH15-160/10 160 0.9 1300*1100*900 100 2310/2200
SH15-200/10 200 1 1400*1000*900 120 2730/2600
SH15-250/10 250 1.4 1600*1100*950 140 3200/3050
SH15-315/10 315 1.6 1700*1100*970 170 3830/3650
SH15-400/10 400 1.7 1750*1100*1000 200 4520/4300
SH15-500/10 500 2.3 1800*1100*1100 240 5410/5150
SH15-630/10 630 4.5 2.6 1900*1100*1100 320 6200
SH15-800/10 800 2.9 2000*1500*1200 380 7500
SH15-1000/10 1000 3.5 2100*1600*1350 450 10300
SH15-1250/10 1250 4.5 2200*1700*1350 530 12000
SH15-1600/10 1600 6 2300*1900*1400 630 14500
SH15-2000/10 2000 7 2400*2000*1700 750 18300
SH15-2500/10 2500 9 2550*2500*1700 900 21200
【网站地图】【sitemap】